BVB August-Lenz-Haus
Büro- und Verwaltungsgebäude in Dortmund
Projekt
Das August-Lenz-Haus am Signal Iduna Park (ehem. Westfalenstadion) in Dortmund wurde 1993 als Geschäftsstelle für den BV Borussia Dortmund 09 e. V. an der Strobelallee errichtet. Die Strobelallee trägt ihren Namen nach dem ehem. Dortmunder Stadtbaurat Hans Strobel, der in den 1920er Jahren im Rahmen des "Masterplans" Volkspark alle wichtigen Sport- und Erholungsstätten in diesem Bereich vorsah. Es beheimatete die Vereinsverwaltung bis zu ihrem Umzug in neue und größere Räume am Dortmunder Westfalendamm im Jahre 1998. Das ca. 1.000 qm große Gebäude wurde nach dem ersten Fußball-Nationalspieler von Borussia Dortmund, August Lenz, der von 1936 bis 1950 im Kader stand, benannt. Direkt hinter dem Gebäude schließt die 1926 errichtete Kampfbahn "Rothe Erde" an, die von 1937 bis zum Bau des Westfalenstadions im Jahr 1974 Heimat der Mannschaft von Borussia Dortmund mit zeitweise bis zu 42.000 Zuschauerplätzen war. Seit dem Umzug der BVB - Profimannschaft in das nebenan liegende Westfalenstadion wird das "Stadion Rote Erde" heute hauptsächlich für Leichtathletikveranstaltungen und Spiele der BvB - Amateur - Mannschaften benutzt. Das Westfalenstadion, das seit 2005 Signal Iduna Park heißt, bietet nach drei Ausbaustufen heute Platz für rund 82.000 Zuschauer. Es ist damit das größte reine Fußballstadion Deutschlands.
Nach dem Umzug der Geschäftsstelle von Borussia Dortmund stand das August-Lenz-Haus bis zur Fußball-Weltmeisterschaft 2006 leer. Zur WM bezog dann vorübergehend das FIFA-Organisationskomitee Dortmund die Räume. Bereits während der WM wurden die Planungen für den Umbau des Gebäudes für einen BvB-Fanshop und die Gaststätte "Strobels" aufgenommen. Unmittelbar nach dem Auszug der FIFA-Mitarbeiter begannen im Spätherbst 2006 die Abbruch- und Entkernungsarbeiten. Nach nur dreimonatiger Bauzeit während der Bundesliga-Winterpause konnte das August-Lenz-Haus termingerecht am 26. Januar 2007 zum Rückrundenstart wiedereröffnet werden.
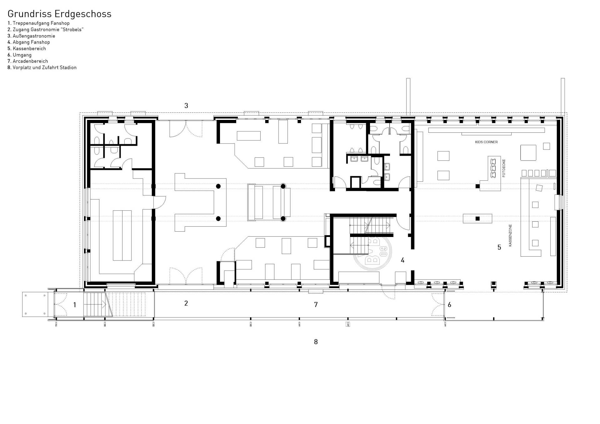
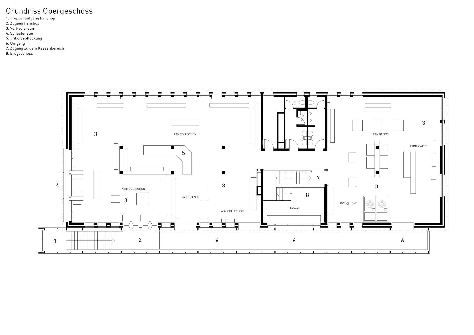
Besonderes Augenmerk wurde bei der Planung auf den Bestand des Gebäudes gelegt. Somit wurden, auch unter wirtschaftlichen Gesichtspunkten, u. a. bestehende vertikale Erschließungen und Funktionsbereiche in das neue Planungskonzept integriert. Bezogen auf diese Parameter wurde entschieden, den Gastronomiebereich mit rund 350 qm Fläche im Erdgeschoss mit direktem Zugang zum Stadionvorplatz und Anbindung an die Biergartenflächen zu platzieren. Der Fanshop mit rund 650 qm Fläche erschließt sich somit über zwei Ebenen.
Zur Stärkung des Gebäudes und dessen Signalhaftigkeit wurde unter Einbeziehung aller Fensteröffnungen eine rund 25 Meter lange und 7,50 Meter hohe Stahlrahmenkonstruktion mit vollflächiger Verglasung vorgelagert. Dieser neue, in den Vereinsfarben illuminierte Gebäudeteil dient über eine frei gespannte Stahltreppe der Erschließung der Obergeschoss-Verkaufsflächen. Neben diesem Aspekt wurde die interne Organisation des Fanshops so ausgelegt, dass durch die Einbeziehung des neuen gläsernen Baukörpers in die Kundenwegführung eine visuelle Verbindung von Innen zum Stadionbereich geschaffen wird.
In der Bundesliga-Sommerpause 2008 wird das August-Lenz-Haus noch um eine Brückenverbindung zur vierten Ebene des Signal Iduna Parks erweitert. In den Flächen der nord-östlichen Stadionecke wird im Sommer das Vereinsmuseum von Borussia Dortmund eröffnen. Dieser zweite Abschnitt wird für alle Ebenen des August-Lenz-Hauses und des Museums ebenfalls den uneingeschränkten Zugang für behinderte Besucher schaffen.













