BVB SIGNAL IDUNA PARK Eingang West
Sportstätte
Entwurf
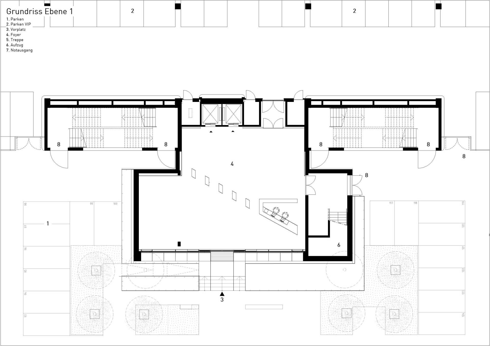
Mit der Erweiterung der Westtribüne des Signal Iduna Parks schaffte der BVB ein neues Zentralfoyer für die VIP-Bereiche sowie in der Ebene drei zusätzliche Gastronomieplätze im Stammtischbereich. Auf der vierten Ebene entstand mit diesem Anbau eine teiloffene Panoramaterrasse mit Blick auf das Naturschutzgebiet Bolmke. Der Empfang auf der Ebene eins dient seit der Eröffnung ebenfalls als Startpunkt der BVB-Stadiontouren. Insgesamt wurden mit diesem Anbau rund 1.300 qm zusätzliche Flächen geschaffen.
Materialität
Die Materialität des Neubaus nimmt die vielfach vorhandenen Sichtbetonflächen der benachbarten Bauteile als Fassadenmaterial auf. Der neue Treppenraum als Rettungsweg aber auch als gestalterisch anspruchsvolle und interessante Wegeführung ergänzend zum Doppelaufzug nimmt ebenfals dieses Material auf. Im Gegensatz dazu sind in den Aufenthaltsbereichen neben den markanten BVB-Farben schwarz und gelb auch viele Bereiche wie Böden und Möbel mit warmen Holzoberflächen geplant worden.





















