Deichmann Limbecker Platz
Flagship Store in Essen
Projekt
Das 610 qm große Baugrundstück liegt im Herzen der Essener City in direkter Nachbarschaft zu dem Karstadt-Einkaufszentrum "Limbecker Platz". Die von den drei Straßen umgebene Baufläche liegt am historischen Standort des ehem. "Limbecker Tores (Porta Lindenbeke)" als einem von vier Haupttoren der Essener Stadtmaueranlage. Das Tor wurde erstmals 1323 urkundlich erwähnt.
Architektonischer Entwurf
Um die Jahrhundertwende, im Jahr 1898, wurde an diesem Standort ein Geschäftshaus errichtet, welches im zweiten Weltkrieg schwer beschädigt wurde und 1951 als "Kaufhaus Scheepers" neu errichtet wurde. Die Firma Deichmann Übernahm das Objekt im Jahr 1994 und führte das Kaufhaus als "Deichmann-Haus Essen" bis Anfang 2007 weiter.
Nach erfolgtem Abbruch des Bestandsgebäudes wurde das neue Deichmann-Haus als "Flagship Store" im Zeitraum von Februar 2007 bis März 2008 mit einer Nutzfläche von rund 2.000 qm neu errichtet. Das architektonische Konzept zeigt im Gegensatz zu dem üblichen Umgang mit Geschäftshäusern ein hohes Maß an Transparenz. Die Glasfassaden mit den in den Obergeschossen vorgehängten textilen Fassadenelementen der italienischen Firma Tensoforma umfließen die umgebenden Innenstadtachsen Limbecker Straße, Friedrich-Ebert-Straße und Kastanienallee.
Das transparente Architekturkonzept wird durch die Innenarchitektur des Gebäudes unterstützt und dokumentiert die zukunftsgerichteten Wege im Ladenbaubereich der Firma Deichmann. Das im Rahmen des "Flagship Store-Neubaus" erstmals verwendete neue Shop-Konzept wird zukünftig die Grundlage weiterer Planungen des Deichmann-Konzerns darstellen.
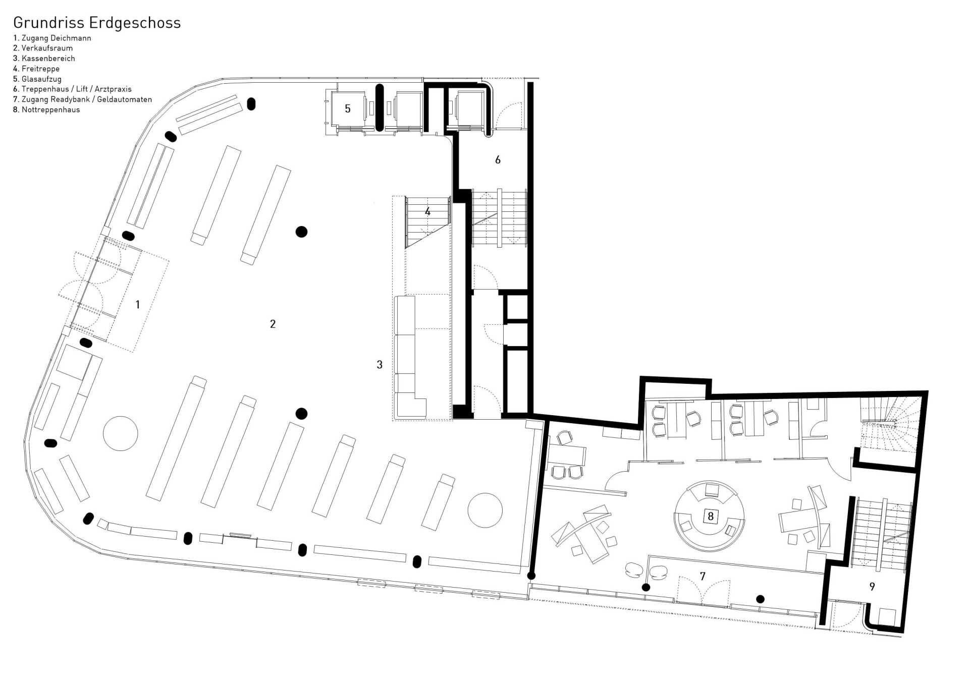
Die insgesamt fünf Ebenen des Gebäudes sehen unterirdisch Lager- und Technikräume vor, im Erd- bis 2. Obergeschoss befinden sich die Flagship Store-Flächen der Firma Deichmann sowie eine Bankfiliale.
Die Verkaufsebenen sind über eine innenliegende Freitreppenanlage und zwei teilverglaste Aufzugsanlagen in verglasten Fahrschächten miteinander verbunden.
Im 3. Obergeschoss befindet sich eine Arztpraxis, die von der Friedrich-Ebert-Straße über ein separates Treppenhaus und eine eigene Aufzugsanlage erschlossen wird. Die Belange behinderter Menschen wurden im Rahmen der Neubauplanung umfassend berücksichtigt.
Massivbau _ Gründung:
Die Gründung des Neubaus wurde in Abstimmung mit den Genehmigungsbehörden der Stadt Essen zum Schutz der vermuteten Bodendenkmäler so gewählt, dass trotz Neubebauung ein Eingriff in den Untergrund weder in der Tiefe noch im Umriss über das schon vorher im Bestand geschaffene Volumen hinaus erfolgen musste.
Daraus resultierte, dass der Gebäudeumriss im Untergeschoss weitgehend nicht identisch mit der Bauform der Obergeschosse herzustellen war, da der über mehr als ein Jahrhundert hinweg gewachsene Kellerumriss als Baugrube dienen mussten.
Die in der Vorplanung konzipierte Gründung über Punkt- und Streifenfundamente musste aufgegeben werden und wurde durch eine Plattengründung in einer Dicke von h=65cm mit der vorhandenen Sohle als Sauberkeitsschicht ersetzt. Dies betraf auch die Fundamentierung des innerhalb des Gebäudeumrisses während der Bauzeit aufgestellten Obendrehkranes. Die unterschiedlichen Gründungshorizonte der Nachbarbebauung mit Höhendifferenzen der Fundamente aus Beton, Ziegel- und Natursteinmauerwerk von bis zu 2,0m resultieren aus dem Höhenverlauf der angrenzenden Straßen, die, bezogen auf das Ladeneingangsniveau, Höhenlagen von +0,80m in der Kastanienallee bis ca. 1,50m am Treppenraum in der Friedrich-Ebert-Straße aufweisen. Hier wurden aufwändige Unterfangungen notwendig und Zug um Zug ausgeführt. Der Haupttreppenraumzugang mit dem Aufzug für das 3., nicht als Laden genutzte, Obergeschoss liegt auf halber Untergeschosshöhe. Die Geschäftsstelle der Bank im Anschluss an die erdgeschossige Verkaufsfläche wurde mittels Doppelboden auf das dort vorhandene Niveau +0,80m gebracht, um füŸr die Zukunft die Möglichkeit der Verkaufsflächenerweiterung ohne Höhendifferenz als Folgenutzung zur Bank offen zu halten.
Tragwerk:
Das Deckentragsystem besteht aus innenliegend angeordneten und über alle Geschosse durchlaufende Rundstützen D=50cm und peripher angeordneten, ca. 100cm gegenüber der Deckenkante zurückgesetzten Ovalstützen im Abstand von 5,0m, die die 30cm dicke monolithischen Betondecken mit 30mm Belag tragen. Die unterzugs- und voutenlose Konstruktionsart wurde gewählt, um eine optimale Nutzungshöhe in den Verkaufsebenen zu schaffen. Die dem öffentlichen Verkehrsraum zugewandten Fassaden sind somit fast vollständig, einschließlich zweier der drei Aufzugfahrschächte, offen und verglast.
Die Z-förmig verlaufende Grenzwand zu den Nachbargebäuden und die Treppenraumwände Übernehmen die notwendige Gebäudeaussteifung. An den Grenzwänden erfolgten bei laufenden Abbrucharbeiten letzte Grundrissanpassungen, da z.T. erst zu dem Zeitpunkt die Situation in der Lage und Lotigkeit der in der Vergangenheit gemeinsam genutzten Grenzwände offen zutage traten. Im Resultat führte dies zu einer gänzlich neuen Grenzsituation, da die alten Wände weder in statischer Hinsicht oder der Lotigkeit noch wegen ihres Gründungshorizontes den neuen Anforderungen gerecht wurden.
U.a. zur Vermeidung einhäuptiger Schalungen in dieser besonderen Situation wurden alle tragenden Wände als Hohlkammerwände 20-25cm dick ausgeführt, in die die Treppenläufe und Podeste in Form von Betonfertigteilen integriert wurden.
Ausbau:
Die raumbildenden Maßnahmen im Untergeschoss erfolgten in Kalksandsteinmauerwerk, in den Obergeschossen konsequent und einschließlich der Mietbereichtrennwände mit den erhöhten Anforderungen zum Brand-, Schall- und Durchbruchschutz in Trockenbauweise.
Die Sozialräume der Bank im 1. Obergeschoss wurden durch eine innenliegende offene Treppe als nichtnotwendige Treppe mit den Geschäftsräumen im Erdgeschoss verbunden, der Überhohe Doppelboden dient hier der Installationsführung für Klimatisierung, Elektroversorgung und Datenleitungen. In der Folge wurde durch die Bank eine 24h-SB-Zone mittels Glasfaltwand abgetrennt und der ca. 1.000kg schwere Geldausgabeautomat / SB-Terminal aufgestellt.
Alle Räume der Obergeschosse erhielten abgehängte Decken, überwiegend als glatte Gipsplattendecken, z.T. als Rasterdecken. Die Struktur der Decken in den Verkaufsräumen wird stark von dem friesartig abgesetzten Anschluss an die Fassade als auch der großen Zahl von technischen Einbauten, die in ihrer Ausrichtung dem nicht orthogonal aufgebauten Einrichtungskonzept folgen, bestimmt. Eine Beleuchtungsstärke von mehr als 1.000Lx an jeder Stelle setzt eine entsprechend große Anzahl von verschiedenartigen Leuchten und eine entsprechend komplexe Lüftungstechnik voraus. Eine segelartige Großform als gestaltendes Deckenelement um den zentralen Bereich der stählernen Freitreppe herum findet ihre Entsprechung in einer deckungsgleichen Form mit Belagswechsel im Boden des hellen keramischen Belag in quadratischen Großformaten auf einen hochstrapazierfähigen Kunststoffbelag mit Naturholzanmutung. Die einläufigen Stahlwangentreppen mit ca. 1,90m Laufbreite und Zwischenpodesten überspannen ca. 9,50m. Tragendes Element sind die geländerhohen Wangen aus 15mm dickem Stahlblech. Die eingeschweißten Stufen sind läuferartig mit keramischen Stufenplatten belegt. Die Fläche des fremd genutzten 3.Obergeschosses wurde von Anfang an mit einem Hohlraumboden konzipiert, um noch unbekannte Installationen ohne Beeinträchtigung des Verkaufsbetriebes in den darunterliegenden Geschossen verlegen zu können. Diese Ausführung erwies sich im Zusammenhang mit dem zeitversetzten Ausbau der Fläche als Zahnarztpraxis mit 11 Behandlungsräumen als essenziell.
Diese Geschossfläche ist um die Fläche einer nicht überbauten Aufstellfläche der HLS-Technik verkleinert.
Technische Gebäudeausrüstung:
Neben den zentralen Einführungen und Verteilungen für Wasser, Elektrizität, Telekom und Fernwärme sowie der Unterbringung der Brandmeldezentrale wurde die komplette Lüftungstechnik mit Heizung und Kühlung für die verschiedenen Nutzungsbereiche auf der umbauten aber nicht überbauten Dachfläche auf der Ebene des 3.Obergeschosses realisiert. Ein sekundäres System versorgt die Unterflurkonvektoren der Arztpraxis und die Heizkörper der Nebenräume mit Heizenergie.
Fassade
Bestimmend für die Wirkung des Gebäudes auf seine Umgebung den Betrachter von außen und den Nutzer von innen ist zu jeder Zeit die aus vier gänzlich unterschiedlichen Elementen bestehende Fassade, wobei die in einem dunkelgrauen Eisenglimmerton gehaltene raumhohe Pfosten-Riegelkonstruktion mit festverglasten und öffenbaren Elementen den größten Anteil hat. Im Erdgeschoss ist die Verglasung ohne sichtbare Vertikalpfosten als schaufensterartige, der Grundrissform polygonal geknickt folgende Festverglasung und dem Geländeverlauf entsprechend ausgeführt. Lediglich das Hauptportal und die in jedem Geschoss angeordneten Lamellenfenster für die Entrauchung unterbrechen diese Ausführung, sie geht im Erdgeschoss in die leicht gegenüber der Hauptfassade zurückgesetzte Fassade der Bankfiliale über, die so ihr ganz eigenes Gepräge erhält.
Den größeren Flächenanteil mit ca. 550mà bildet die Textilfassade aus mit silberfarben beschichteten und grau bedruckten Polyester-Gewebebahnen mit 30% freiem Querschnitt, die auf Spezial-Aluminiumrahmen von ca. 1,25x3,60m Größe gespannt sind. Die Rahmen auf den Gebäudeecken sind im Radius von ca. 9,5m gerundet ausgeführt, alle Elemente sind im Abstand von ca. 27cm mittels Tragbolzen an den Pfosten der Glasfassade montiert.
Ebenfalls auf den Gebäudeecken gerundet, bedecken Tonplatten in dunkel-braun-grauem Farbton die Deckenzonen zwischen den Geschossen und die Attika sowie die geschlossenen Wandflächen der Treppenräume an den Übergängen zu den Nachbargebäuden. In sie sind die Treppenraumfenster, analog zu den Tonplatten als liegendes Format, und die Hauseingänge mit zum Teil viertelkreisförmig ausgebildeten Leibungen integriert.
Als sehr prägendes Element überragt ein bewusst leicht gehaltenes Vordach die erdgeschossige Glasfläche schirmartig. Die konstruktiv bedeutsamen Elemente aus Kragarmen und Druckstäben wurden klar in Ihrer Funktion erkennbar ausgebildet und sichtbar belassen. Neben der schützenden Funktion erfüllt das Dach auch eine Funktion als Geräteträger für saisonale Dekorationen und die Fassadenbeleuchtung mittels Spezialleuchten.
Die Materialwahl der unterhängend montierten Schichtpressstoffplatte in einem Holzdekor vermittelt und leitet zwischen dem eher technisch orientierten "Außen" und dem modebewussten, dem Corporate Identity unterliegenden "Innen".











