FC Köln VIP Ebenen
Sportstätte in Köln
Projekt
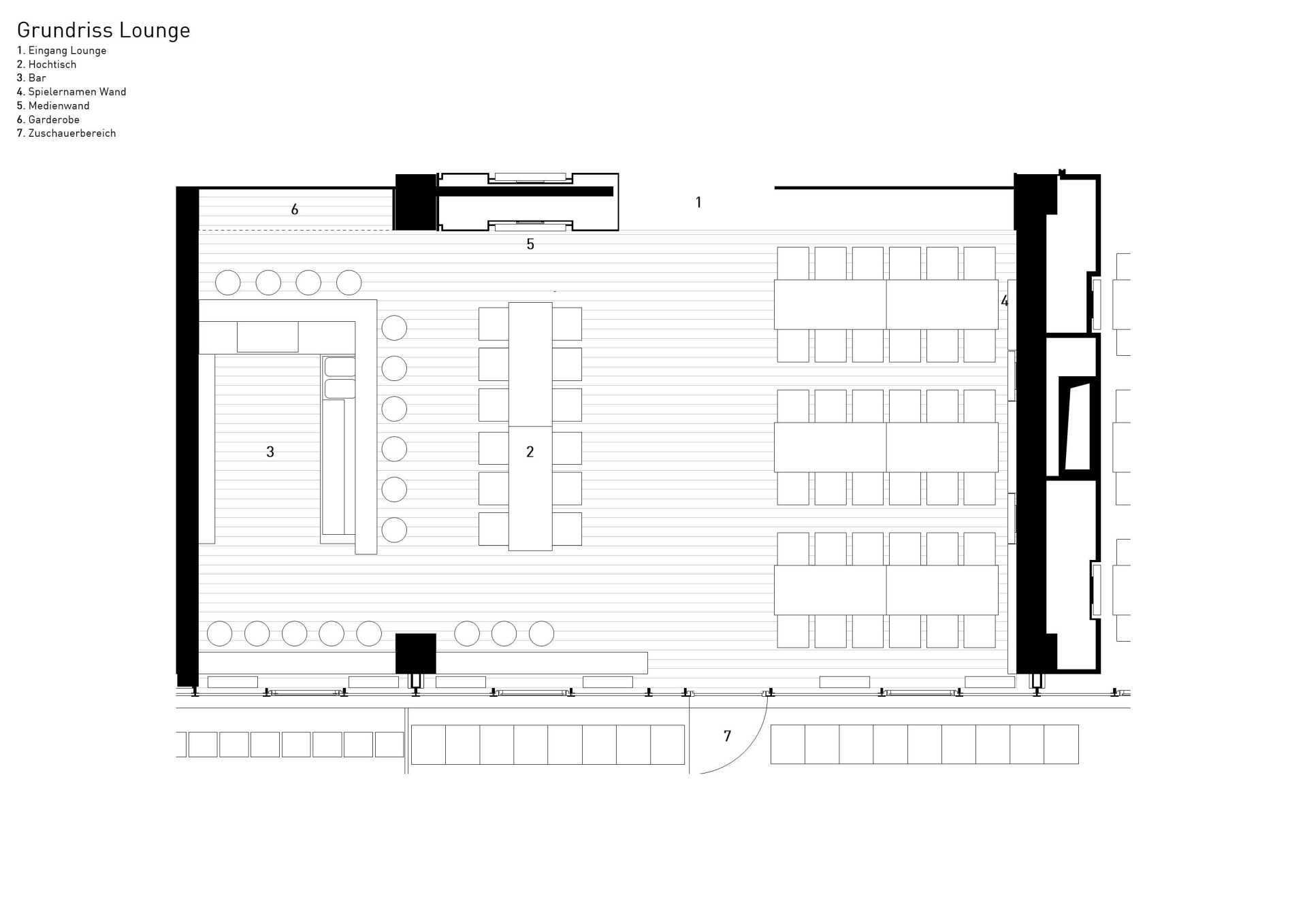
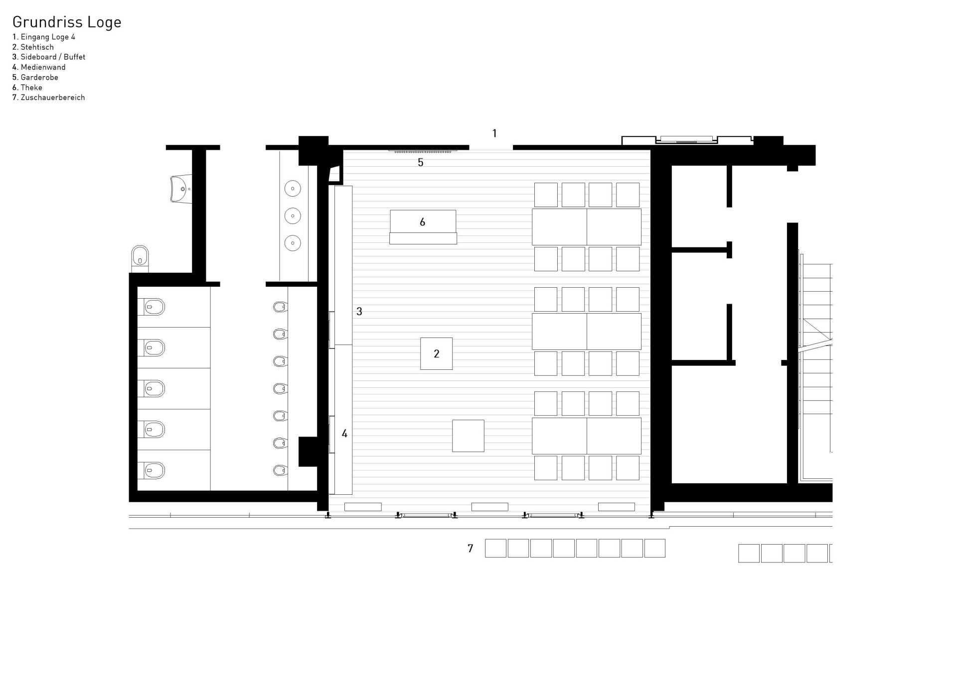
Die bisher vom 1. FC Köln als Verwaltung bzw. Logen genutzten 1.400qm großen Fläche auf der Ebene Nord-Ost +2 sind durch den Umbau in das Veranstaltungsflächenkonzept des RheinEnergieStadions einbezogen worden. Insbesondere bietet diese Fläche interessante Verbindungswege und –möglichkeiten zu den Clubloungebereichen im Norden sowie den restlichen Gastronomieflächen auf der Westtribüne. Die Fläche bietet nunmehr verschiedene Nutzungsvarianten wie z.B. Spieltags- (525 Pers.), Konferenz- (370 Pers.), und Sondernutzung (1000 Pers.) Musik, Messe, Events. Neben den großflächigen Businessbereichen 1 und 2 werden in weiten Teilen vorhandene Raumfolgen zum Stadioninnenraum hin wie bisher als Logen genutzt. Zwischen den Logen 2 und 3 wurde ein direkter Zugang auf den Stadionrang errichtet. Für die Gäste wurde im Businessbereich 1 ein Barbereich und im Businessbereich 2 ein Buffetbereich eingerichtet. Diese Anlagen sind mobil ausgestattet, sodass jeweils auf die Bedürfnisse flexibel eingegangen werden kann. Die Versorgung der Buffetbereiche erfolgt über die neu errichtete Regenerationsküche zum Übergang Nord. Für alle Gäste werden auf dem Tribünenrang reservierte Sitzbereiche geschaffen.
Bei Konferenznutzung wird der Businessbereich 1 für 370 Personen bestuhlt. Die Abtrennung des Bereichs zum Businessbereich 2 erfolgt durch ein mobiles Trennwandsystem. Diese Fläche kann in den Konferenzpausen zur gastronomischen Versorgung genutzt werden. Je nach Veranstaltungsgröße werden Möblierungen angepasst.
Bei der Sonderveranstaltungsnutzung kann die Veranstaltungsfläche für bis zu 1.000 Personen auf einer Grundfläche von rund 900 qm genutzt werden. Die mobilen Bar- bzw. Buffetbereiche werden entsprechend des gastronomischen Konzepts flexibel zwischen aufgebaut. Im Hauptraum besteht die Möglichkeit, mobile Bühnen- und Ausstellungsflächen zu errichten.





