Polymer Latex
Büro- und Laborgebäude im Industriepark Dorsten - Marl
Projekt
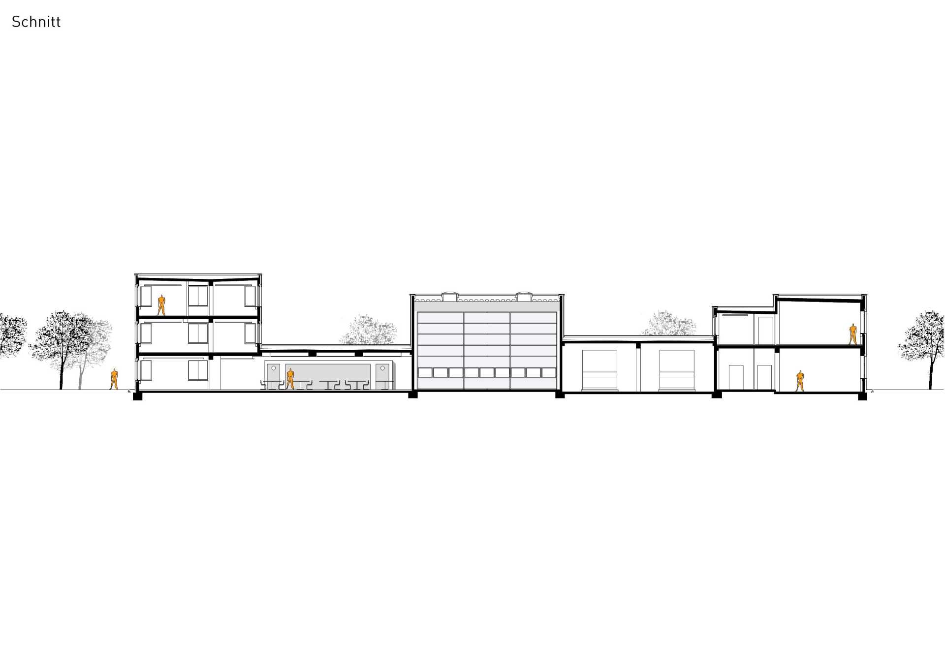
Für den Neubau des Headquarter der Polymer Latex GmbH und CO.KG wurde unter mehreren Alternativen der Interkommunale Industriepark Dorsten / Marl als idealer Standort ausgewählt. Als Grundlage für die Grundstücksauswahl innerhalb des Industrieparks wurden auf Basis einer ersten Bedarfsanalyse diverse Gebäudestrukturen auf die Eignung hinsichtlich der Bauaufgabe eines zusammenhängenden Gebäudekomplexes untersucht, und Lageplanvarianten für fünf verschiedene Grundstücke erarbeitet. Für die Planung ausgewählt wurde eine Teilfläche des Grundstücks `Block XIV`, welche eine Erweiterungsoption im rückwärtigen Bereich beinhaltet. Der Baukörper des Polymer Latex Headquarter gliedert sich in einen dreigeschossigen Verwaltungsbau und zwei parallel liegende, zweigeschossige Laborgebäude. Alle Gebäudeteile sind durch eine zentrale Erschließungsstraße miteinander verbunden. Eingeschossige Sonderbereiche wie Kantine und Lager sind zwischen den drei Hauptbaukörpern angelegt und definieren durch ihre eingerückte Lage Bezüge zur Außenlandschaft, sowie Innenhöfe von hoher Aufenthaltsqualität. Die Baukörperstruktur ist so angelegt, dass alle Bereiche auf kurzem Wege miteinander verknüpft sind. Die zentrale Funktion Übernimmt die horizontale Wegeführung in Form einer Erschließungsstraße. Sie verfügt an beiden Enden über Eingangsbereiche für Besucher und Mitarbeiter. Die vertikalen Erschließungsbereiche der Büro- und Laborebenen sind ebenso wie die Besprechungsräume und Mitarbeiterumkleiden direkt über die zentrale Erschließung zugänglich.
Alle Anlieferungsbereiche sind so im Gebäude positioniert, dass sie zentral über den Erschließungsweg angefahren werden können. Ein großer, von der Hauptwegeführung abgesonderter Verteilerbereich, bedient das Technikum, die Laborlager und die Küche, ohne Parkflächen und Zugänge zu behindern.
Die Parkflächen für Besucher und Angestellte sind in Verlängerung der horizontalen Erschließung angeordnet und verfügen über direkten Zutritt zu den entsprechenden externen und internen Eingangsbereichen.
Durch die offene Struktur des Gebäudes können die Landschaftsgärten in die Arbeitsbereiche hineinfließen und sorgen so für eine hohe Arbeitsplatzqualität. Neben den bestehenden Pausenräumen bieten sie den Mitarbeitern zusätzliche, natürliche Ruhe- und Erholungszonen.
Besprechungsräume sind dezentral im Gebäude verteilt, um kurze Wege von den Arbeitszonen zu gewährleisten. Der Charakter der Räume ist vielfältig angelegt, Präsentations- und Konferenzräume liegen in unmittelbarer Nähe zur Kantine, um auch Besuchern eine Zugänglichkeit über den externen Bereich zu ermöglichen und eine schnelle, unkomplizierte Bewirtung der Räume zu gewährleisten.
Die Kantine kann durch ihre Lage am Eingangsbereich ebenfalls von Gästen besucht werden, ohne dass der interne Sicherheitsbereich betreten werden muss. Eine Terrasse im Innenhof ermöglicht eine Erweiterung der Fläche im Sommer und natürliche Beleuchtung des bestuhlten Bereiches im Inneren.
Gründung
Die Lage des Baugrundstücks auf nur 35m NN-Höhe im Urstromtal der benachbarten Lippe und unmittelbar neben dem deutlich höher gelegenen Lippe-Seitenkanal macht es verständlich, das mit einem außerordentlich hohen Grundwasserstand etwa ein Meter unter Geländeoberkante zu rechnen ist. Ebenfalls zu berücksichtigen war, dass das Gebiet hier im nördlichen Ruhrgebiet extrem durchlässige, fast reine Sandböden bis in jede Gründungstiefe aufweist. Der nordwärts wandernde Steinkohlenbergbau hat hier aktuell ein Ende gefunden, jedoch nicht ohne seine Spuren auch in Form von Bergsenkungen hinterlassen zu haben. Das hat zur Folge, dass der Grundwasserstand durchaus weiter ansteigen und die offene Oberflächenentwässerung des Gebietes nur über dauernden Pumpbetrieb in den zentralen Pumpwerken aufrecht erhalten werden kann, aber auch, dass weitgehend auf Unterkellerungen verzichtet werden musste. Das Entwurfskonzept sieht deshalb nur eine Minimalunterkellerung entlang der rückgratartigen, alle drei Bauteile verbindende "Mall", vor. Die östliche Hälfte ist nur noch als Verbindungstrasse mit reduziertem Querschnitt für die Medienversorgung einschließlich evtl. zukünftiger Erweiterungen auf der östlichen Grundstückshälfte ausgeführt. Diese unterirdischen Bauteile, die sowohl von den Treppenräumen als auch für Transportzwecke von Aufzügen angefahren werden, mussten komplett als weiße Wannen ausgeführt werden, mit der Möglichkeit der nachträglichen Verpressung der rissgefährdeten Anschlussbereiche, Bauteil- und Arbeitsfugen. Alle unterirdischen Bauteile wurden außenliegend mit für den Lastfall zugelassenen Perimeterdämmstoffen gedämmt. Die Baugruben waren nur über großflächige und langanhaltende Grundwasserabsenkungen trocken zu halten. Schon normale Regenereignisse führten teilweise zum Einschwemmen größerer Sandmassen in die Baugrube und andere Ausschachtungen. Vorteilhaft war, dass keine Materialien als Unterbau für die Gründung oder für Verfüllzwecke angefahren werden mussten. Bis zum Erreichen der vollen Gebäudelast waren Maßnahmen der Auftriebsicherung einzuhalten. Dies betraf besonders das über vier Meter tief gegründete Rückhaltebecken für chemikalienbelastete Abwässer, das unmittelbar neben einem flach gegründeten, aber hoch belasteten Gebäudeteil liegt. Wegen der Lastdifferenzen zwischen Vollfüllung und dem leeren Zustand von etwa 45t war die Sicherung dort nur durch Auflast aus der Verfüllung auf einem allseitigen Sohlplattenüberstand zu realisieren. Die Gründung aller anderen Bauteile erfolgte über Punkt- und Streifenfundamente mit gebetteten Sohlplatten auf verdichtetem Planum und Sauberkeitsschicht aus eben abgezogenem Mineralgemisch. Die Sohlplatten erhielten eine 2m breite Randstreifendämmung, die äußeren Fundamentüberstände eine Perimeterdämmung auf Abdichtung gegen Bodenfeuchtigkeit. Teile der Sohlplatte wurden so weit abgesenkt und im Sinne des Wasserhaushaltsgesetzes (WHG) und der Löschwasserrückhalterichtlinie (LöRüRL) mittels wu-Beton und Beschichtung abgedichtet, dass eine raumbezogene Löschwasserrückhaltung in vorgegebener Menge stattfinden kann.
Tragewerk
Entsprechend der Untergliederung des Gesamtkomplexes in die Bereiche Forschung und Entwicklung und Verwaltung sind Konstruktion und Raumstruktur auf die unterschiedliche Nutzung abgestimmt. Die Höhenentwicklung stellt sich so dar, dass zwei Geschosse in den Labortrakten fast die Gebäudehöhe des dreigeschossigen Verwaltungsgebäudes erreichen. Die Notwendigkeit dafür ergibt sich aus dem hohen Installationsgrad unter den Decken, hauptsächlich aus der extrem aufwändigen Lüftungsanlage, die rund um die Uhr laufen muss.
Die Hauptkonstruktion der Labortrakte wird durch ein StBFertigteil Stützen-Unterzug- und in der Fassadenebene durch ein Brüstungs-Unterzugssystem gebildet. Diese werden über Fertigteilwandscheiben der Giebel, Treppenräume und Aufzugschächte ausgesteift. Die Zwischen- und Dachdecken sind überwiegend als Teilfertigteildecken mit Aufbeton erstellt worden, im etwa zwei Geschoss hohen sog. Technikum wir die Dachdecke aus StB-Bindern mit etwa 12m Spannweite und Trapezblech gebildet. Dort sind die StB-Stützen als Kranbahnstützen für zukünftige Nutzung ausgebildet. Die Fensteröffnungen im Rohbau sind in den Labortrakten vier Ausbauraster, entsprechend 5,5m, breit. An den Giebelseiten der Obergeschosse wurden analog zu den erdgeschossigen Nebenausgängen Fluchtbalkone mit Anleiterpunkten als zweiter Rettungsweg in Stahlbauweise angeordnet, sie dienen gleichzeitig als Installationswege für Rohrleitungen und Luftkanäle zwischen den Dachzentralen und den Laborzonen. Die immer nur eingeschossigen, jedoch unterschiedlich hohen Verbindungen zwischen den Labortrakten und zwischen Labortrakt und Verwaltung sind in der gleichen konstruktiven Systematik erstellt, jedoch mit geschosshohen Fensterelementen und Rundstützen in der Fassadenebene. Das Tragwerk des Verwaltungstraktes ist wie vor ausgebildet, nur mit dem Unterschied, dass die Fassaden aus Wandplatten mit Lochfenstern in jedem Ausbauraster gebildet werden. Diese Konstruktion wird im Bereich des Haupteingangs mit der zentralen Empfangshalle, den besonderen und besonders gestalteten Konferenzräumen und der Anbindung an die Kantine und den Innenhof signifikant mit freistehenden Rundstützen und geschosshoher Verglasung unterbrochen.
Ausbau
Außer in den Fällen, in denen der raumbildende Ausbau durch Stahlbetonwände aus Gründen der Stabilität erfolgte, ist er konsequent als Gipsplatten-Ständerwerkkonstruktion ausgeführt worden, die im Großen und Ganzen weder besondere Schallschutz- noch Brandschutzfunktionen zu übernehmen hat. Die Innentürelemente sind den jeweiligen Anforderungen angepasst und decken eine Palette von ein- und zweiflügeligen Stahlblechfunktions- und Aluminiumrahmenrauchschutztüren über überbreite, dichtschließende Vollspantüren mit Sichtfenstern in den Laboren, Ganzglastüren in den Sozialbereichen WC, Waschen, Umkleiden und Sonderkonstruktionen als Ganzglastüren mit Oberlichten, z.T. auch feststehenden Seitenteilen, mit aufgesetzten Holzelementen in der Holzart, die sich als Oberflächendessin in der Fassadengestaltung und Teilen der Möblierung wiederfindet. Die Böden der zentralen Bereiche sind mit großformatigen, dunkelgrauen Steinzeugfliesen belegt. Im Übergang zu den Laboren wechselt dieses auf ein Mittelformat, dass sich sowohl auf den Erschließungsflächen als auch in den Laboren wiederfindet. Hier sind besondere Anforderungen an die darunterliegende Abdichtung im Verbund als auch an die Verklebung und Verfugung aus Gründen der Chemiekalienbeständigkeit zu erfüllen gewesen. Die Treppen sind mit dem gleichen Material belegt. Büroräume und büroähnliche Räume in den Labortrakten sind durchgängig in Teppichboden ausgeführt worden, einige besondere Räume mit speziellen Kunststoffbahnenbelägen.
Abgehängte Decken sind, wiederum der Funktion angepasst, als Alupaneeldecken in Nass- und Feuchträumen, gelochte Mineralfaserweitspanndecken in den Flurzonen, glatte und gelochte Gipsplattendecken und Deckensegel in Sonderbereichen. Büro- und Konferenzräume sind durchgängig mit auf das Fassaden- und Leuchtenraster abgestimmte Kühlsegel aus gelochten Metallkassetten unterhalb der sichtbar bleibenden Betondecke ausgeführt worden.
Die Inneneinrichtung insgesamt, sowohl die Bürostandardmöblierung als auch die Sondermöblierungen der Eingangshalle, der Kantine und der Konferenzräume einschließlich der Mitwirkung bei der künstlerischen Gestaltung, wurde in einem eigenständigen Auftrag an die Architekten für den Nutzer geplant und mit ausgeführt.
Technische Gebäudeausrüstung
Entsprechend den vorher beschriebenen funktionell und konstruktiv unterschiedlichen Anforderungen an die Gebäudeeinheiten sind auch die Anforderungen an die technische Gebäudeausrüstung sehr unterschiedlich und infolgedessen weitgehend für den Zweck autark realisiert worden.
Angefangen bei den Grundleitungen, wozu vier ganz unterschiedliche Systeme ausgeführt wurden:
- Regenwasser, dass über einen Staukanal verzögert in die oben erwähnte offene Oberflächenwasservorflut abgegeben wird mit Entspannungsmöglichkeit auf Erdgleiche zur Vermeidung von Rückstau bis auf die Dachflächen
- Laborabwasser, dass über ein verschweißtes PE-Rohrsystem aus Anschluss-, Sammel- und Grundleitungen dem unter Gründung beschriebenen Sammel-, Neutralisations- und Füllbehälter zugeführt wird. Hier ist besonders die mechanische, nicht so sehr die chemische Widerstandsfähigkeit, von Bedeutung, um den Reinigungsprozessen zur Entfernung von auspolymerisiertem Latex widerstehen zu können. Das so vorbehandelte Abwasser wird dann kontrolliert dem Schmutzwassersystem per Pumpe zugeführt. Dies geschieht auch mit dem Überschusswasser aus den Abscheidern, die der Vorbehandlung der Küchenabwasser dienen.
Das gesamte Schmutzwasser wird abschließend, ebenfalls per Pumpe, dem Schmutzwasserkanalsystem zugeführt. Der oben beschriebene Sammelbehälter besteht aus einem an sich wasserdichten Betonbehälter der auf Abstand mit einem vor Ort geschweißten doppelwandigen Edelstahlbehälter mit zwei Kammern ausgekleidet ist. Der Zwischenraum wird auf Leckage überwacht. Die Wandstärke ist so groß, dass Reinigungsarbeiten zur Entfernung der Latexkrusten auch mit schwerem Gerät vorgenommen werden können.
Raumlüftung: Augenfälliges Merkmal der Gesamtanlage sind die geradezu exzessiv großen Lüftereinheiten auf den Dächern der Labortrakte, die zum Einen aus den hohen Anforderungen an Luftwechselzahlen und Luftqualitäten resultieren, aber auch aus Dauerbetrieb der Abzugsanlagen und erhöhtem Luftbedarf im Notfallbetrieb.
Die benötigte Heiz- und Lüftungswärmeenergie wird in Form von Warmwasser für das gesamte Objekt im oben beschriebenen Untergeschoss des Bürogebäudes erzeugt.
Der Bereich Küche und Kantine, die auch als Versammlungs- und Veranstaltungsraum genutzt wird, verfügt über ein eigenes, außen aufgestelltes Aggregat für Lüftung mit Heizung und Kühlung. Die Kälteerzeugung für die Deckensegel in den Büroräumen findet auf dem Dach des Bürobauteils in einer eigenständigen Einheit statt.
Die Labore sind dem Gebäudezweck entsprechend mit einer Vielzahl von hochkomplexen Installationen auf breiten Installationstrassen ausgestattet, an die Abzugschränke und Versuchstände angeschlossen sind. Die benötigten Gase werden über ein außen liegendes Gaslager bezogen. Kühl- und VE (vollentsalzenes) -Wasser sowie Druckluft werden im Gebäude erzeugt und in das Netz eingespeist.
Im Bereich der Vorfahrt, die auch zentrale Anfahrstelle für Feuerwehr und Rettungskräfte ist, befindet sich die zentrale Löschwassereinspeisung für die in allen Gebäudeteilen und Geschossen eingebauten trockenen Steigleitungen.
Auf der Elektroseite sind folgende Systeme zur Ausführung gekommen:
- Niederspannungsversorgung aus einer 10kVSonderabnehmer-Kompakttrafoanlage
- Anschlüsse für Telefon- und Datenleitungen für verschiedene Zwecke, Anschlussleitungen der Brandmeldeanlage
- Einbruchmeldeanlage
- In kleinem Umfang eine Ela-Anlage
- Videoüberwachung im Außenbereich
- Im Gebäude große Mengen an Datenverkabelungen für die Büroarbeitsplätze und MSR-Technik.
Fassade
Ebenfalls entsprechend der Untergliederung des Gesamtkomplexes in die Bereiche Forschung und Entwicklung und Verwaltung sind die Fassadenbekleidungen auch in Art und Material unterschieden. Die zwei Geschosse hohen Labortrakte mit ihren prägenden horizontalen AluminiumfensterbŠndern sind in der Fläche mit graualuminiumfarbenen, horizontal gegliederten Metallpaneelen im Höhenraster von 250mm belegt. Die Fassaden der Laborbüros und Nebenräume mit ihrer ebenfalls horizontal angelegten Fensterfront kontrastieren mit einer großformatigen Bekleidung aus Hochdrucklaminatplatten mit braun-roter Oberfläche im Echtholzdessin. Diese Ausführung findet ihren Abschluss auf der Rückseite des ansonsten mittelgrau auf Wärmedämmverbundsystem geputzten Bürotraktes als Wandbekleidung des aus der Fassade vorspringenden Treppenraumes sowie als kleinflächiges Zitat in Form der Fassadenbekleidung eines Konferenzraumes, die in die rückspringende und raumhohe Verglasung der Eingangshalle integriert ist. Die Bekleidung wird im Gebäudeinnern als Wandbekleidung des gleichen Raumes fortgeführt, womit der formale Übergang dieses anspruchsvollen Gestaltungsmittels in den Innenraum vollzogen ist. Die Fassade der Eingangshalle ist als Pfosten-Riegelkonstruktion mit integrierter Trommeltür für den Tageszugang ausgeführt worden.
Alle Fenster sind mit elektrisch zu betätigenden, außenliegenden Sonnenschutzlamellen ausgestattet. Im Bereich der raumhohen Verglasungen der Zwischentrakte ist der Sonnenschutz in Form von Textilrollos realisiert worden, die Fassadenbekleidung im Attikabereich besteht hier aus großformatigen Aluminiumpaneelen, die flächig mit winkelförmigen Wetterschutzprofilen belegt und somit signifikant strukturiert sind.
Die nordgerichtete, etwa 7m hohe Fassade des Technikums ist ebenfalls als Pfosten-Riegel-Konstruktion ausgebildet und statt des Sonnenschutzes mit strukturierter Verglasung versehen worden. Der ebenfalls nordgerichtete Fassadenbereich der zentralen Anlieferung mit den großformatigen Toröffnungen wurde aus Gründen der mechanischen Stabilität bei den Lade- und Transportvorgängen als Sichtbetonsandwichfassade ausgebildet.
Außenanlagen
Die organisatorische Dreiteilung des Betriebes findet ihre Fortsetzung in der Zonierung der Außenanlagen. Hier wird deutlich zwischen dem repräsentativen und offenen, auch der Allgemeinheit zeitweise zur Verfügung stehendem Zugangsbereich mit den dem Verwaltungsgebäude zugeordneten Stellplätzen, und dem gesicherten hinteren Bereich unterschieden. Dieser umfasst die Zufahrt zu den Mitarbeiterparkplätzen für den Laborbetrieb, die Anlieferung der benötigten Materialien, Maschinenkomponenten, Gase und Lebensmittel sowie den Abtransport von sortierten Wert- und Reststoffen und der gekühlt gelagerten Küchenabfälle. Eine kombinierte Schiebetor-Schrankenanlage sichert diesen Bereich vor unbefugter Nutzung zu jeder Zeit ab, ohne jedoch die umlaufenden Anfahr- und Aufstellmöglichkeit für Feuerwehrfahrzeuge zu behindern, da die Öffnungsmöglichkeiten der Tor- und Schrankenanlage in das Brandmeldekonzept einbezogen sind. Der dritte, östlich gelegene und weitgehend naturbelassene und unversiegelt ausgeführte Grundstücksbereich ist zukünftigen Erweiterungen von bis zu etwa 100% vorbehalten. In die naturbelassene und baumfreie Fläche ist eine südgerichtete Anlage für die Aufstellung von Gestellen für Langzeitbewitterungsversuche integriert, deren Entwässerung über Versickerung erfolgt










