RAITH
Bürogebäude
Unternehmen
Die Raith GmbH ist ein weltweit operierendes Unternehmen mit den Tätigkeitsschwerpunkten Entwicklung und Produktion von Hochleistungssystemen für die Nanotechnologie. Raith bietet darüber hinaus Analysesysteme zur Fehlererkennung bei Halbleitern an. Da ein weiteres Wachstum am jetzigen Standort im Technologiepark Dortmund nicht möglich ist, fiel nach Analyse verschiedener Optionen die Wahl auf das Baufeld 19.2 mit einer Grundstücksgröße von ca. 7.120qm im Zukunftsstandort Phoenix-West in unmittelbarer Nähe zur bestehenden MST-Factory. Das Entwicklungsszenario für die nächsten Jahre sieht eine Vergrößerung der derzeitigen Nutzflächen auf ca. 4.450qm vor. Davon sind für Labor-, Logistik und Produktionsflächen ca. 2.100qm und für Seminar- und Officeflächen ca. 2.350qm vorgesehen. Langfristig wird eine Verdoppelung der Arbeitsplatzzahl angestrebt.
Städtebauliches Konzept
Bei der Entwicklung des Gebäudekonzeptes werden die detaillierten Planungsvorgaben des von der LEG Stadtentwicklung GmbH und der Stadt Dortmund im Jahr 2005 herausgegebene Gestaltungshandbuch berücksichtigt und umgesetzt. Entsprechend der Höhenvorgaben wird zur adressgebenden Konrad-Adenauer-Allee hin der viergeschossige Baukörper mit den Büronutzungen angeordnet. Nördlich schließt sich unter Ausnutzung der gegebenen Topographie der Labor- und Produktionsbereich an. Entlang der rückwärtigen Planstraße bildet er im Rahmen der Höhenfestlegungen ebenfalls eine Raumkante. Acht Besucherstellplätze werden von der Konrad-Adenauer-Allee erschlossen und befinden sich in unmittelbarer Nähe zum Haupteingang. Die übrigen ca. 88 Stellplätze haben ihre Zufahrt von der Planstraße mit niveaugleichem Mitarbeiterzugang ins Gebäude.
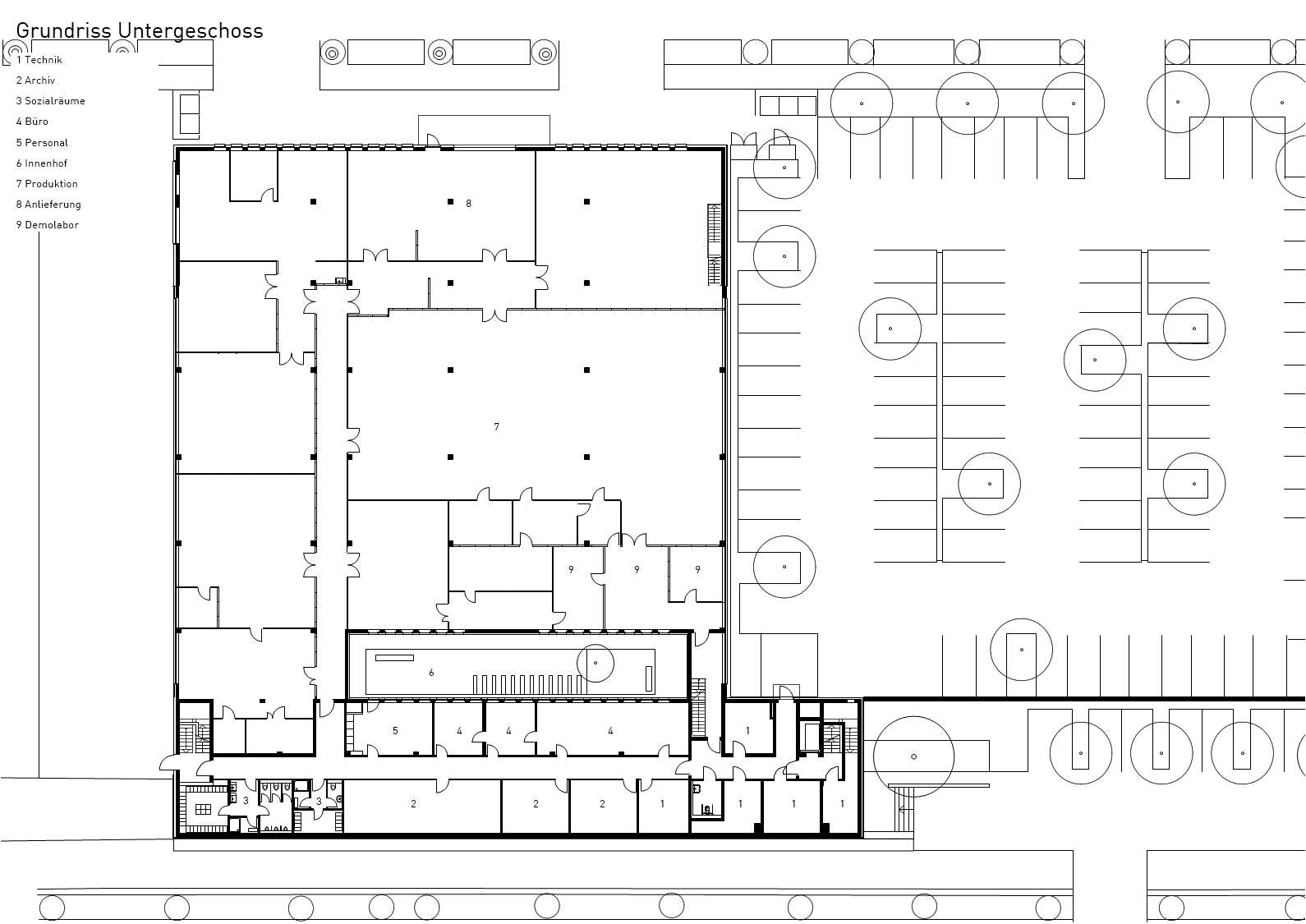
Gebäudestruktur
Auf Eingangsniveau orientiert sich das Foyer mit integriertem Empfangsbereich zur Konrad- Adenauer-Allee hin. Von hier erreicht man über Treppenraum und Aufzug barrierefrei alle Geschosse oder den benachbarten Seminarbereich. Mehrere Konferenzräume können dort durch mobile Trennwände für besondere Anlässe zueinander geöffnet werden. Der Seminarbereich steht in direkter Verbindung zum Demonstrationslabor im Produktionsbereich. Die funktionale und baukörperliche Trennung der unterschiedlichen Nutzungen wird durch die Zäsur des internen, bepflanzten Lichthofes verdeutlicht. Er dient aber auch zur natürlichen Belichtung der umliegenden Nutzflächen und hat Brandschutzfunktionen. Der Labor- und Produktionsbereich wird teilweise durch leichte Trennwände in Nutzungseinheiten gegliedert, die aber flexibel an sich ändernde Anforderungen anpassbar sind. Nicht zu belichtende Nebenräume, Technik und Lagerflächen werden entlang der Konrad-Adenauer-Allee auf Produktionsebene angeordnet.










