S.E.A.House
Bürogebäude in Dortmund
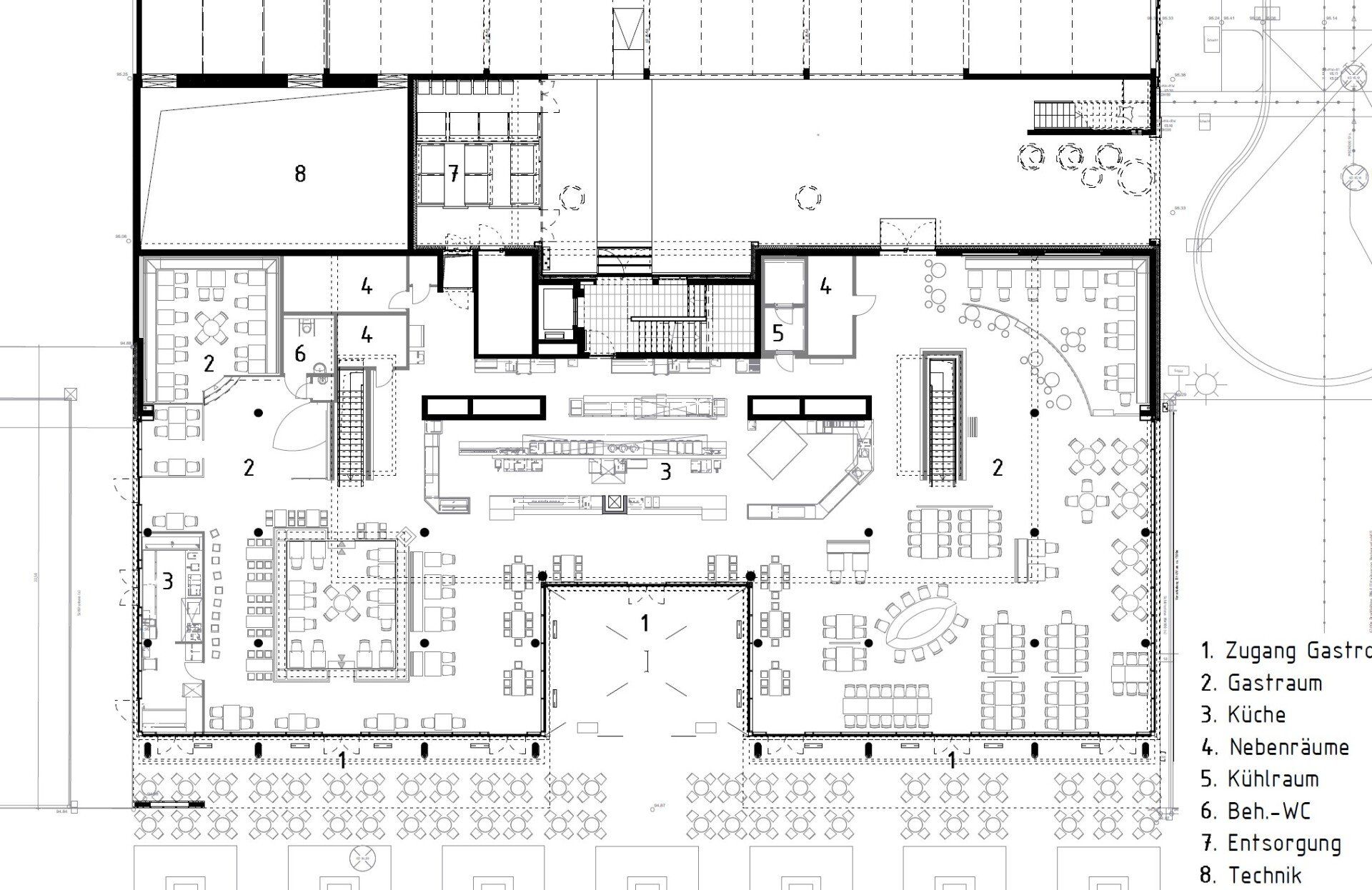
Das S.E.A.House wurde im Jahr 2013 im Zuge der Entwicklung des in Europa größten Städtebauprojektes "Phoenix See Dortmund" auf der ehemaligen Industriebrache Phoenix-Ost in unmittelbarer Nähe zur Hörder Burg fertig gestellt. Neben Gastronomieflächen im Erdgeschoss des südlichen Bauteils bietet das S.E.A.House auf insgesamt rund 12.500 Quadratmetern Büro- und Praxisflächen in den Obergeschossen sowie fünf Penthouse-Wohnungen mit direktem Blick auf den Yachthafen.
Materialität
Das Gebäude solln durch seineinteressante und ansprechende Gestaltung Passanten und Nutzer des gesamten Phoenix SEEs und der Hörder Burg ansprechen. Wichtige Elemente hierbei sind die terrassenartigen Seebalkone, die als Zwischenzone den Gegensatz von Gebäude und Naturraum so weit wie möglich aufheben. Maritime Elemente wie hölzerne Schiffsdecks finden sich in wettergeschützten Bereichen wie den Seebalkonen, Segel des Yachthafens werden als textile Sicht- und Sonnenschutzelemente abstrakt in das Gebäude integriert. Die hellen Farbtöne und warmen Materialien, die Transparenz der Fassaden und deren große Öffnungsmöglichkeiten schaffen einen atmosphärischen, modern-mediterranen Charakter voller Leichtigkeit.
Gebäudestruktur
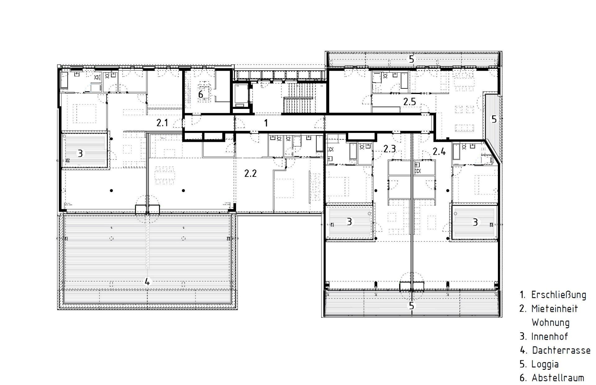
Die entwickelte Gebäudestruktur erreicht unter Beachtung der detaillierten Vorgaben aus dem Bebauungsplan trotz der differenzierten Außenwirkung zum See hin eine hohe bauliche Ausnutzung der Grundstücksfläche. Die Vertikalerschließung ist so positioniert, dass ein Höchstmaß an Flexibilität der Flächenaufteilung möglich ist. So können je Ebene von einer einzigen zusammenhängenden Nutzungseinheit bis zu vier unabhängige Nutzungseinheiten mit variabler Größe angeordnet werden. Die Bandbreite der Mietflächengrößen je Ebene beginnt bei ca. 200qm und reicht bis ca. 1220qm. Insgesamt wurden auf dem Grundstück ca. 12.500qm BGF realisiert. - Ergänzend zu den früher üblichen Konvektoren / Heizkörpern lässt sich durch Systeme wie der Bauteilaktivierung eine höhere Behaglichkeit bei geringem Energieeinsatz erreichen. Ein solches System arbeitet zu einem Teil über Strahlungswärme und kann gegen sommerliche Überhitzung auch
kühlend eingesetzt werden. Eine weitere Option ist die Sicherstellung eines minimalen Luftwechsels über eine Lüftungsanlage, die die Lüftungswärmeverluste mittels einer hocheffizienten Wärmerückgewinnung minimiert. Lichtlenkender außenliegender Sonnenschutz kann den Energiebedarf für Beleuchtung deutlich senken und gleichzeitig als Blendschutz wirken.








