Test-Applikationszentrum ZBT
Forschungsgebäude in Duisburg
Als Erweiterung des im Jahr 2003 erbauten Zentrums für BrennstoffZellenTechnik (ZBT) wurde mit Fördermitteln des Ministeriums für Wirtschaft, Mittelstand und Energie NRW sowie der Europäischen Union auf dem 3.600 qm großen Grundstück an der Universität Duisburg-Essen das Test-, Applikations- und Assemblierungs-Zentrum (TAZ) errichtet.
Das durch eine Brückenverbindung mit dem ZBT verbundene Gebäude wurde in einer Bauzeit von knapp 1 ½ Jahren errichtet.
Das Gebäude mit ca. 3.000 qm Nutzfläche bietet Platz für die Forschungs- und Entwicklungsarbeit im Vorfeld der Markteinführung von Brennstoffzellen. Der Kern liegt hier, in Ergänzung zum ZBT, im Bereich der Fertigungstechnik, der Assemblierung und Automatisierung sowie dem Leistungsbereich Test und Qualifizierung unter produktionstechnischen Aspekten.
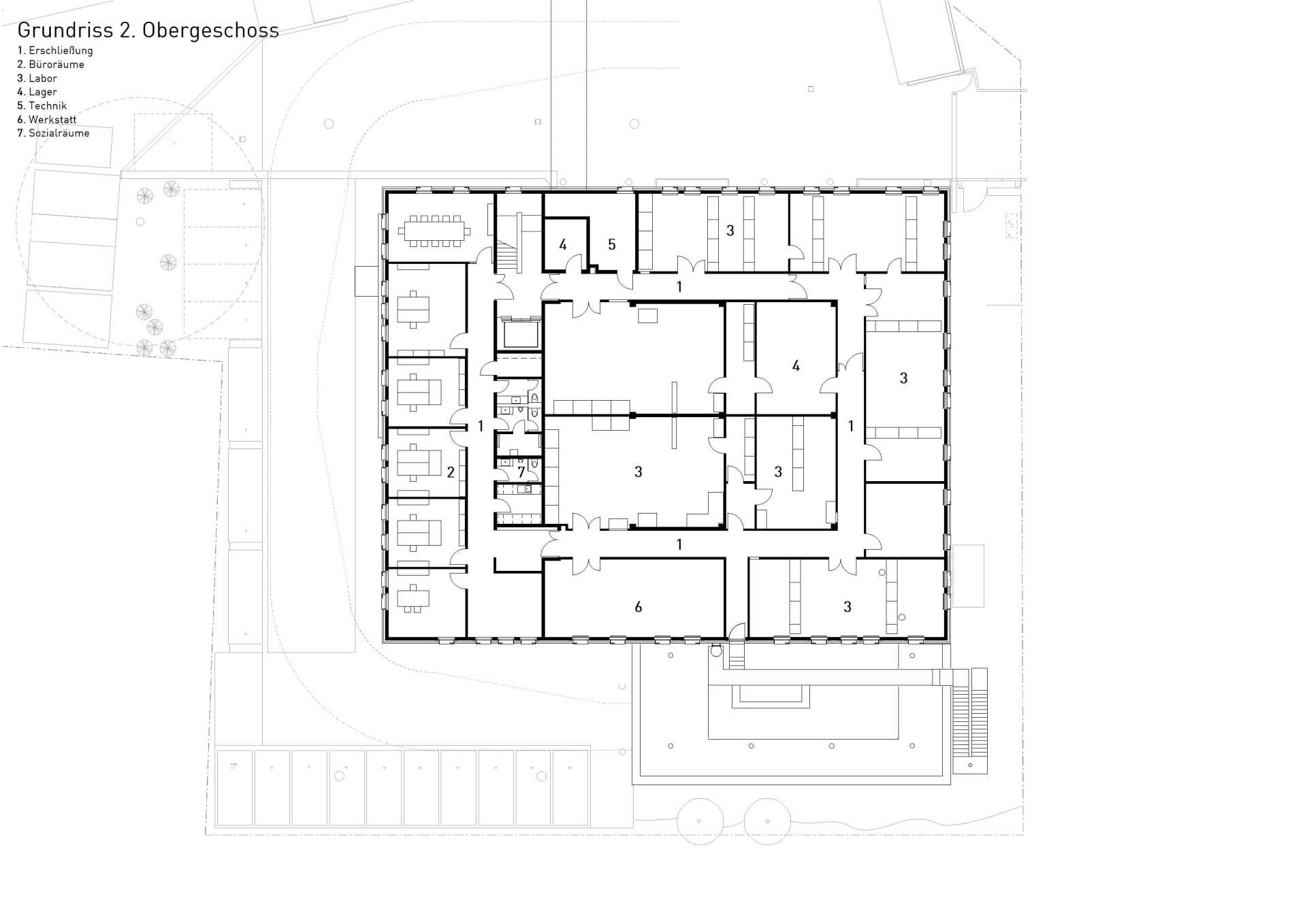
Das viergeschossige, kubische Gebäude mit einer Grundfläche von rund 1.270 qm und einer Gesamtkubatur von rund 15.250 cbm bietet im Erd- und 1. Obergeschoss Flächen für teilweise zweigeschossige Labor- und Werkstattbereiche sowie einen ebenfalls zweigeschossigen Ausstellungs- und Simulationsbereich.
Im 2. und 3.Obergeschoss befinden sich neben weiteren Forschungsbereichen und Laboren Büro- und Verwaltungsflächen für ca. 70 Mitarbeiter.
Der Gebäudestandort wurde so gewählt, dass der wertvolle Baumbestand zur Carl-Benz-Straße hin im Wesentlichen erhalten werden konnte. Die Erschließung und Anlieferung erfolgt über die vorhandenen Flächen des ZBT.













